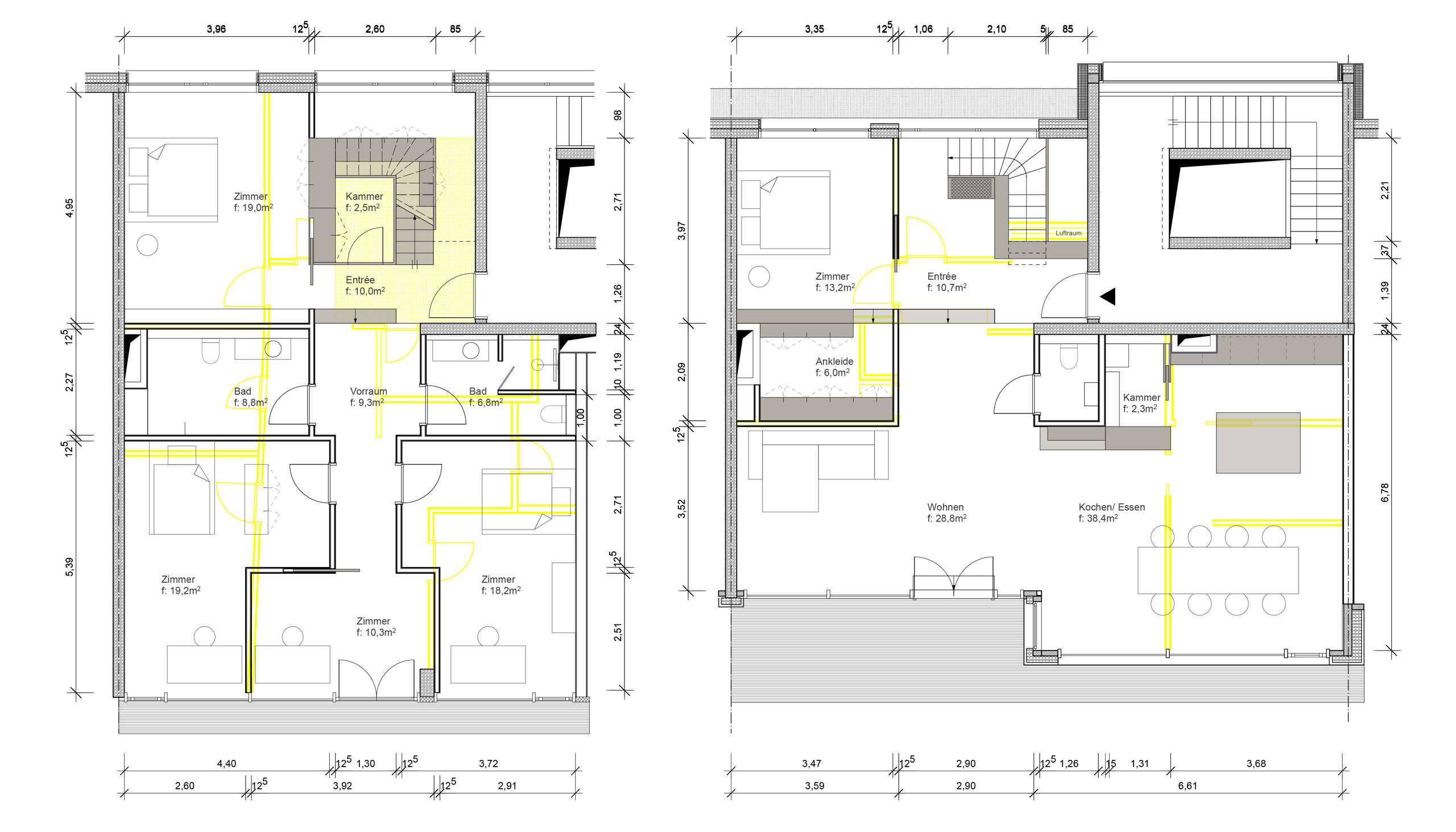
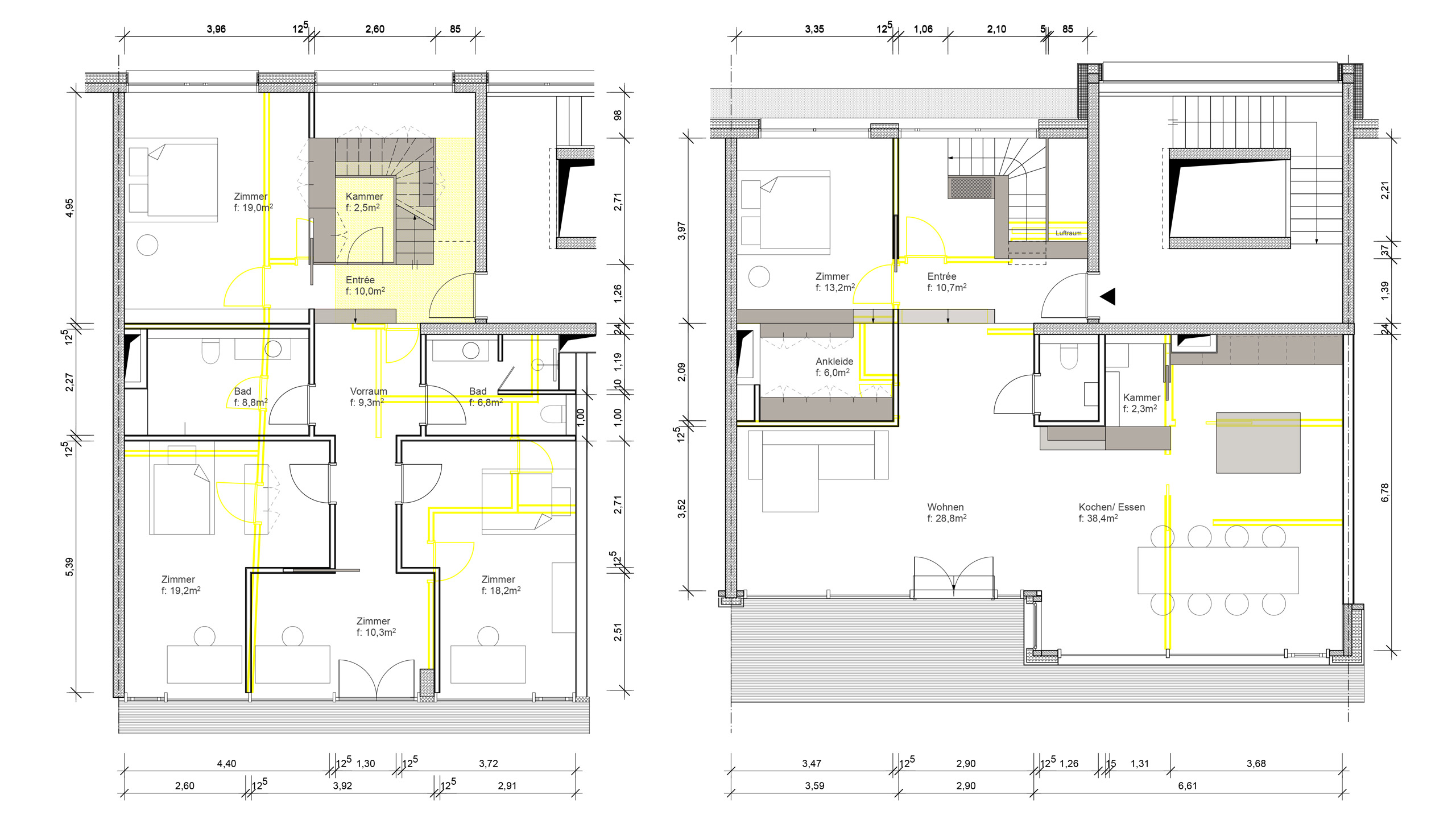
WHG TMPLHF

In einer Überbauung im Bezirk Tempelhof aus dem Jahr 2012 sollen zwei übereinander liegenden Wohnungen in der 5. und 6. Etage zusammengelegt werden. Auftraggeber ist eine 4-köpfige Familie, die bereits eine der beiden Wohnungen bewohnt und nun ihren Lebensraum vergrößern will.

Das Projekt sieht ein neues Layout der Grundrisse vor. Die neu entstehende Maisonette- Wohnung wird über den Eingang in der oberen Etage erschlossen und wird auf dieser Etage relativ offen gestaltet. Die vertikale Erschließung wird über eine neu zu errichtende, innen liegende Treppe gewährleistet. In der unteren Etage befinden sich 3 der 4 separaten Schlafräume, sowie zwei Bäder.

Farb- und Materialkonzept verbinden beide Etagen zu einer gestalterischen Einheit, lassen jedoch zugleich Raum für die individuelle Identität der einzelnen Familienmitglieder.

LEHRE

Wie lässt sich Demokratie räumlich denken? Wer wird sichtbar, wer gehört dazu – und wer nicht? Diese Fragen standen im Zentrum unseres Studios „A Seat at the Table“ an der Berlin International University of Applied Sciences, welches ich gemeinsam mit Prof. Lukas Staudinger und Kommunikationsdesignerin Barbora Demovič im Wintersemester 2024/25 begleiten durfte.

In interdisziplinären Teams – Architektur, Innenarchitektur und Grafikdesign – haben unsere Studierenden erforscht, wie demokratische Räume entstehen können: Orte des Dialogs, der Teilhabe und der Mitbestimmung, sowohl physisch als auch digital.

Die Studierenden entwickelten dafür architektonische Konzepte und kommunikative Strategien für verschiedene Berliner Initiativen – jeweils abgestimmt auf deren spezifische Bedürfnisse. Die Bandbreite der Projekte reichte von räumlichen Ansätzen für Sexarbeiter*innen über digitale Beteiligungsplattformen bis hin zu einem mobilen Verkaufs- und Veranstaltungswagen für einen inklusiven Bauernhof.

Die Ergebnisse wurden schließlich in einer öffentlichen Ausstellung im Aedes Metropolitan Laboratory in Berlin präsentiert.

Nach oben scrollen